Notice
Recent Posts
Recent Comments
Link
| 일 | 월 | 화 | 수 | 목 | 금 | 토 |
|---|---|---|---|---|---|---|
| 1 | ||||||
| 2 | 3 | 4 | 5 | 6 | 7 | 8 |
| 9 | 10 | 11 | 12 | 13 | 14 | 15 |
| 16 | 17 | 18 | 19 | 20 | 21 | 22 |
| 23 | 24 | 25 | 26 | 27 | 28 | 29 |
| 30 |
Tags
- 사옥분양
- 수익형부동산
- 강서 아파트형공장
- 지식산업센터분양
- 서울 지식산업센터 분양
- 아파트형공장
- 서울 사무실
- 사무실분양
- 영등포 지식산업센터
- 역세권 지식산업센터
- 서울 아파트형공장
- 마곡 지식산업센터
- 여의도 사무실
- 강서 사무실
- 영등포 아파트형공장
- 여의도 지식산업센터
- 역세권
- 벤처빌딩
- 영등포 사무실
- 사무실 분양
- 지식산업센터
- 서울 지식산업센터
- 아파트형공장 분양
- 사무실
- 당산동 지식산업센터
- 강서 지식산업센터
- 황금라인
- 지식산업센터 분양
- 역세권 사무실
- 서울 사무실분양
Archives
- Today
- Total
지식산업센터 분양안내 02)2632-9288
양천향교역 도보 2분여 마곡 지식산업센터 마곡 아이파크디어반 2024년 12월 15일 분양개시 예정 - 홍보관, 모델하우스 오픈중! 본문
마곡 R&D센터 마곡 아이파크 디어반 지식산업센터 안내/마곡지식산업센터 마곡 아이파크디어반 분양안내
양천향교역 도보 2분여 마곡 지식산업센터 마곡 아이파크디어반 2024년 12월 15일 분양개시 예정 - 홍보관, 모델하우스 오픈중!
지식산업센터 분양안내 2023. 12. 12. 17:05마곡 아이파크 디어반 광역 조감도

지하철 9호선 양천향교역 도보 2분여거리 마곡 아이파크디어반 홍보관-모델하우스 운영중!
상세 문의 및 마곡아이파크디어반 홍보관 방문을 원하시면 언제든 연락 주시기 바랍니다.

마곡 아이파크 디어반 광역 조감도

마곡 아이파크 디어반 지식산업센터 용도별 구성

마곡 아이파크 디어반 광역 교통입지


마곡 지식산업센터 마곡 아이파크 디어반의 미래가치



마곡 아이파크 디어반 마곡 지식산업센터의 특장점들









마곡 아이파크 디어반 배치도


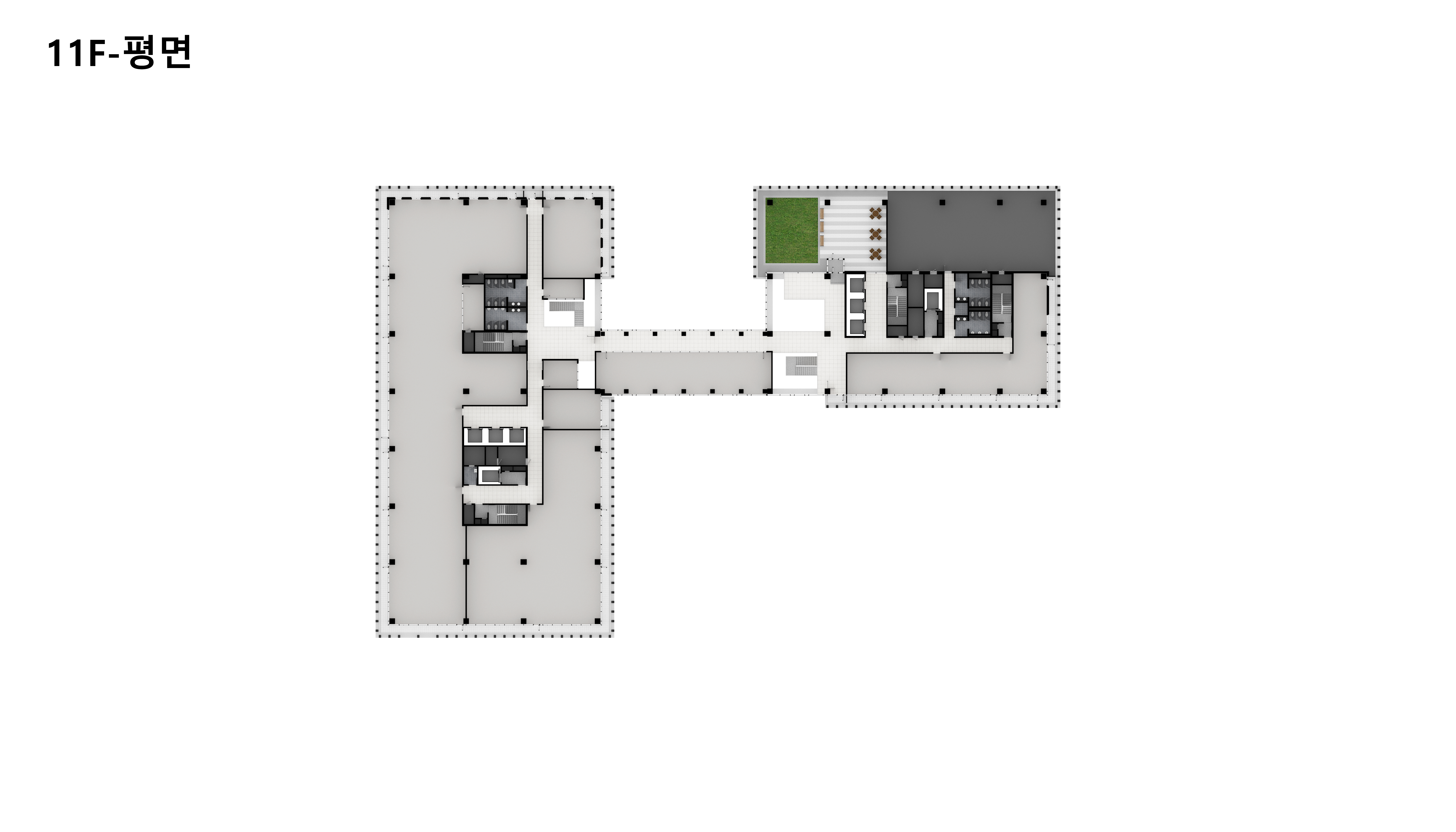
마곡 사무실 지식산업센터 마곡 아이파크 디어반 층별 아이소 도면

































'마곡 R&D센터 마곡 아이파크 디어반 지식산업센터 안내 > 마곡지식산업센터 마곡 아이파크디어반 분양안내' 카테고리의 다른 글
| 서울 5년미만 법인 취득세 3배중과 제외지역 역세권 지식산업센터 마곡 아이파크 디어반 분양중 - 마곡 아이파크 디어반 지식산업센터 홍보관 모델하우스 운영중! (0) | 2024.01.17 |
|---|---|
| 마곡 아이파크 디어반 분양개시! / 마곡 지식산업센터 마곡아이파크 디어반 홍보관, 모델하우스 오픈중! (0) | 2023.12.20 |
| 마곡 아이파크디어반 지식산업센터는 12월 초 분양 ~ 2024년 8월 준공 예정인 후 분양 지식산업센터 (0) | 2023.11.24 |
| 마곡 아이파크 디어반 R&D 지식산업센터 분양안내 / 사무실, 연구개발용 지식산업센터 마곡 아이파크디어반 입주의향서 접수중! (0) | 2023.06.21 |
| 마곡 R&D 센터 지식산업센터 분양예정안내 (0) | 2023.05.25 |
Comments