Notice
Recent Posts
Recent Comments
Link
| 일 | 월 | 화 | 수 | 목 | 금 | 토 |
|---|---|---|---|---|---|---|
| 1 | 2 | |||||
| 3 | 4 | 5 | 6 | 7 | 8 | 9 |
| 10 | 11 | 12 | 13 | 14 | 15 | 16 |
| 17 | 18 | 19 | 20 | 21 | 22 | 23 |
| 24 | 25 | 26 | 27 | 28 | 29 | 30 |
| 31 |
Tags
- 여의도 사무실
- 역세권 사무실
- 사옥분양
- 영등포 지식산업센터
- 강서 지식산업센터
- 영등포 아파트형공장
- 영등포 사무실
- 서울 사무실분양
- 사무실
- 지식산업센터 분양
- 서울 사무실
- 사무실분양
- 서울 지식산업센터 분양
- 서울 지식산업센터
- 아파트형공장 분양
- 벤처빌딩
- 아파트형공장
- 강서 아파트형공장
- 강서 사무실
- 역세권 지식산업센터
- 지식산업센터분양
- 마곡 지식산업센터
- 당산동 지식산업센터
- 서울 아파트형공장
- 여의도 지식산업센터
- 지식산업센터
- 역세권
- 황금라인
- 수익형부동산
- 사무실 분양
Archives
- Today
- Total
지식산업센터 분양안내 02)2632-9288
지하철 9호선 양천향교역 도보 3~4분거리 숲세권 오피스 사무실 마곡 보타닉게이트 분양안내 - 즉시입주 가능 사옥 , 사무실 마곡 보타닉게이트 분양안내. 본문
마곡 보타닉게이트 지식산업센터(사무실) 얀내/마곡 보타닉게이트 사무실 분양안내(양천향교역 도보 3분여거리)
지하철 9호선 양천향교역 도보 3~4분거리 숲세권 오피스 사무실 마곡 보타닉게이트 분양안내 - 즉시입주 가능 사옥 , 사무실 마곡 보타닉게이트 분양안내.
지식산업센터 분양안내 2024. 12. 16. 11:37

마곡 보타닉게이트 사업개요 , 사무실 기준층 도면



입주자를 위한 정책자금 및 금융지원 혜택

마곡 산업단지 입주업종

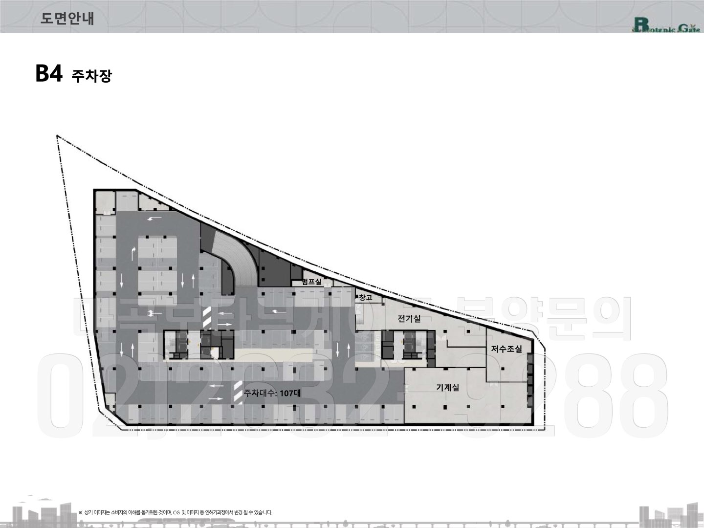
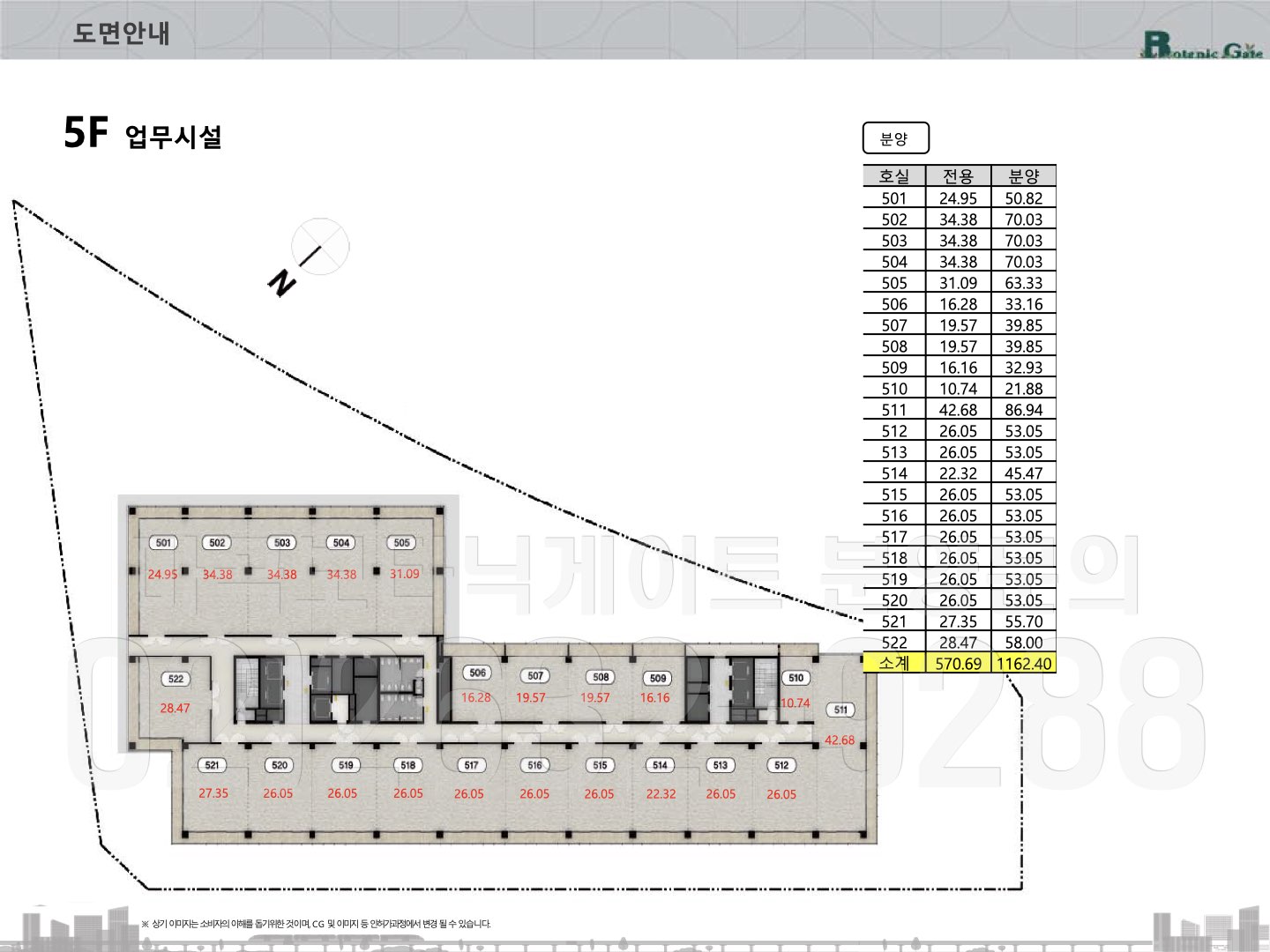
마곡 보타닉게이트 지식산업센터 층별 도면














마곡 보타닉게이트 입주자를 위한 세금감면 혜택

마곡 산업단지 입주업종 정리



마곡 보타닉게이트 현장 직접 답사를 원하신다면
언제든 연락 주시면 안내 드리겠습니다.

'마곡 보타닉게이트 지식산업센터(사무실) 얀내 > 마곡 보타닉게이트 사무실 분양안내(양천향교역 도보 3분여거리)' 카테고리의 다른 글
Comments