Notice
														
												
											
												
												
													Recent Posts
													
											
												
												
													Recent Comments
													
											
												
												
													Link
													
											
									| 일 | 월 | 화 | 수 | 목 | 금 | 토 | 
|---|---|---|---|---|---|---|
| 1 | ||||||
| 2 | 3 | 4 | 5 | 6 | 7 | 8 | 
| 9 | 10 | 11 | 12 | 13 | 14 | 15 | 
| 16 | 17 | 18 | 19 | 20 | 21 | 22 | 
| 23 | 24 | 25 | 26 | 27 | 28 | 29 | 
| 30 | 
													Tags
													
											
												
												- 수익형부동산
 - 강서 지식산업센터
 - 황금라인
 - 서울 사무실
 - 서울 지식산업센터
 - 마곡 지식산업센터
 - 사무실 분양
 - 여의도 사무실
 - 사옥분양
 - 영등포 사무실
 - 역세권
 - 사무실분양
 - 역세권 지식산업센터
 - 벤처빌딩
 - 영등포 아파트형공장
 - 지식산업센터 분양
 - 강서 아파트형공장
 - 여의도 지식산업센터
 - 지식산업센터
 - 서울 아파트형공장
 - 지식산업센터분양
 - 사무실
 - 강서 사무실
 - 영등포 지식산업센터
 - 역세권 사무실
 - 서울 사무실분양
 - 당산동 지식산업센터
 - 아파트형공장 분양
 - 서울 지식산업센터 분양
 - 아파트형공장
 
													Archives
													
											
												
												- Today
 
- Total
 
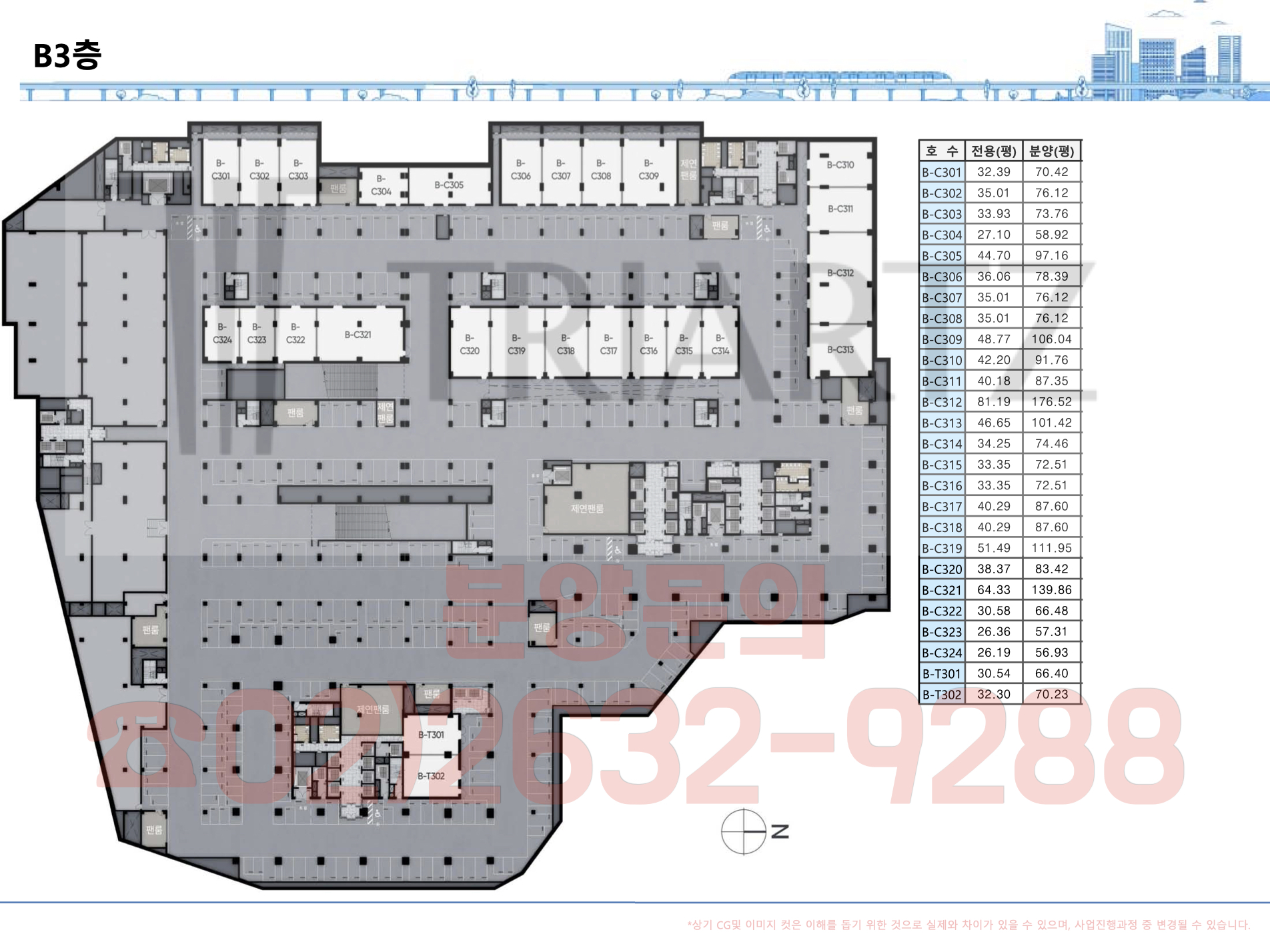
지식산업센터 분양안내 02)2632-9288
트리아츠 군포역과 직접연결되는 연면적 약 74,000여평 28층 초대형 지식산업센터 분양안내 / 제조형 드라이브인 지식산업센터 , 사무실용 사옥용 지식산업센터 군포역 트리아츠 분양중! 본문
			군포 초역세권, 초대형 지식산업센터 안내/군포역 지식산업센터  분양안내
			
		트리아츠 군포역과 직접연결되는 연면적 약 74,000여평 28층 초대형 지식산업센터 분양안내 / 제조형 드라이브인 지식산업센터 , 사무실용 사옥용 지식산업센터 군포역 트리아츠 분양중!
지식산업센터 분양안내 2022. 12. 15. 15:19
군포 트리아츠 지식산업센터 홍보관 운영중!
홍보관 방문을 원하시면 언제든 연락 주십시요.






군포역과 직접역결되는 초역세권 지식산업센터 트리아츠 !
연면적 약 7만4천여평 최고높이 28층의 초대형, 초고층 비즈니스 랜드마크 지식산업센터 군포 트리아츠
GTX-C노선 금정역 인근 및 복합환승센터(예정) 군포 역세권 도시재생(예정)등 탁월한 미래가치의 중심
제조형 지식산업센터의 다이렉트 패스시스템으로 더욱 편안한 물류 이동과 도어투도어 시스템으로 편리한 물류 상하차
경수대로, 영동고속도로, 수도권 제1순환고속도등 쾌속한 광역교통망 입지위치 트리아츠 군포 지식산업센터
업무효율을 높이는 다양한 부대시설 및 힐링공간으로 더욱 쾌적한 근무환경 지식산업센터 트리아츠








































'군포 초역세권, 초대형 지식산업센터 안내 > 군포역 지식산업센터 분양안내' 카테고리의 다른 글
| 군포역과 바로연결되는 트리아츠 군포 지식산업센터 분양안내 / 군포역 트리아츠 지식산업센터 홍보관 운영중! (1) | 2023.04.20 | 
|---|---|
| 군포역 초역권 - 초대형 지식산업센터 분양안내 - 군포역과 바로 연결되는 연면적 7만 4천여평의 지식산업센터 분양안내 - (1) | 2021.12.08 | 
			  Comments