마곡 R&D센터 마곡 아이파크 디어반 지식산업센터 안내/마곡지식산업센터 마곡 아이파크디어반 분양안내
양천향교역 도보 2분여 마곡 지식산업센터 마곡 아이파크디어반 2024년 12월 15일 분양개시 예정 - 홍보관, 모델하우스 오픈중!
지식산업센터 분양안내
2023. 12. 12. 17:05
마곡 아이파크 디어반 광역 조감도

지하철 9호선 양천향교역 도보 2분여거리 마곡 아이파크디어반 홍보관-모델하우스 운영중!
상세 문의 및 마곡아이파크디어반 홍보관 방문을 원하시면 언제든 연락 주시기 바랍니다.

마곡 아이파크 디어반 광역 조감도

마곡 아이파크 디어반 지식산업센터 용도별 구성

마곡 아이파크 디어반 광역 교통입지


마곡 지식산업센터 마곡 아이파크 디어반의 미래가치



마곡 아이파크 디어반 마곡 지식산업센터의 특장점들









마곡 아이파크 디어반 배치도


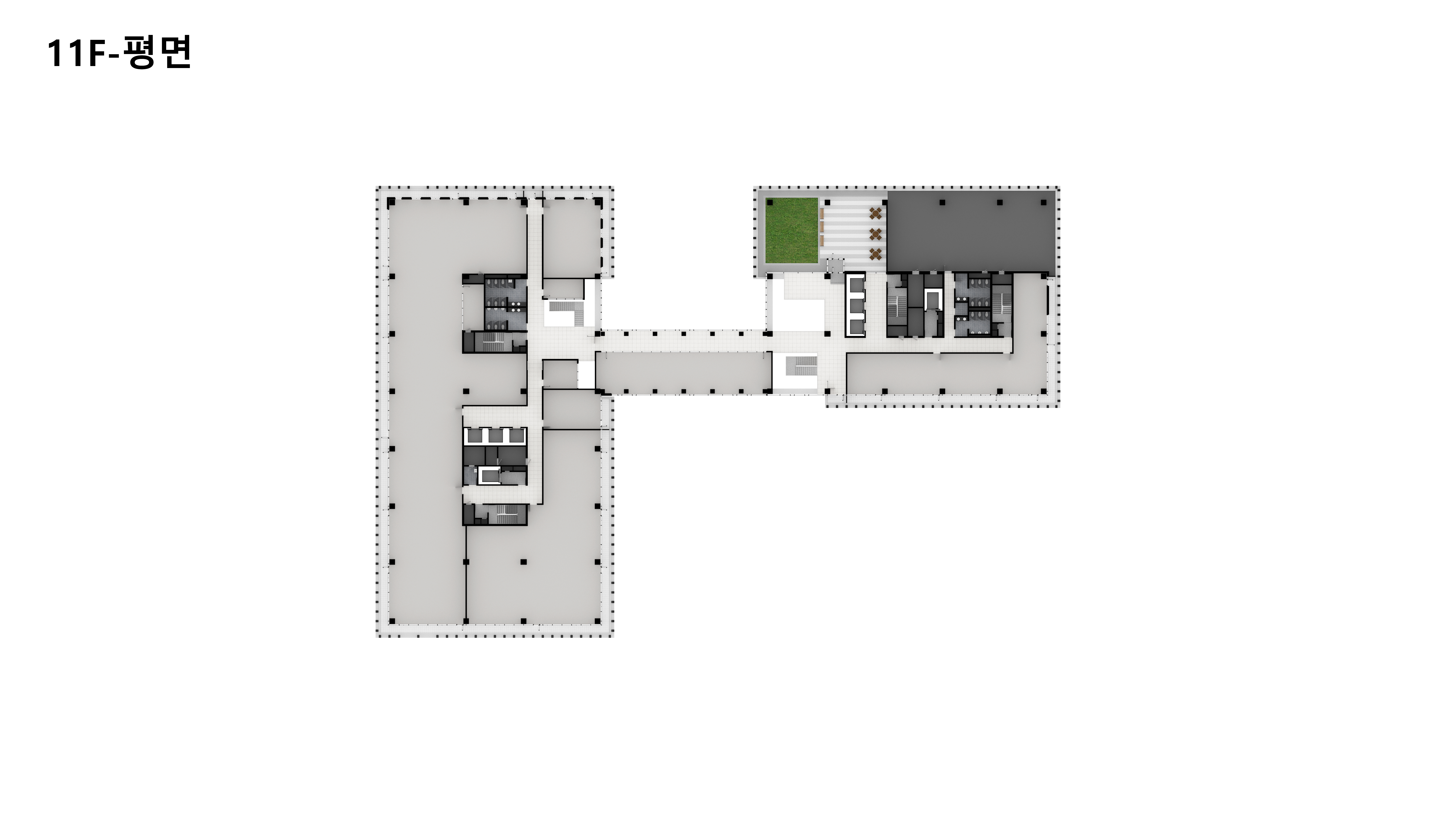
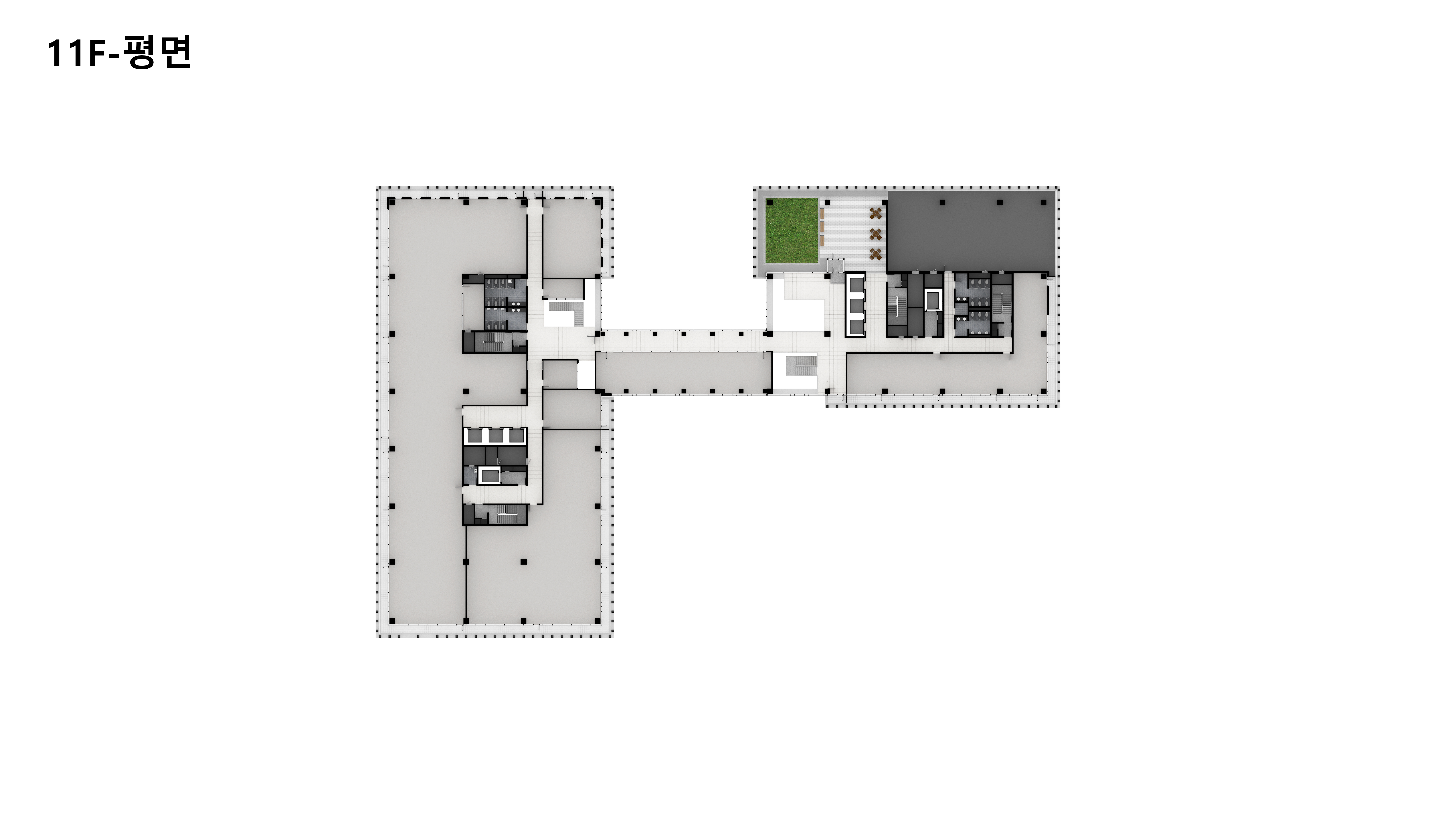
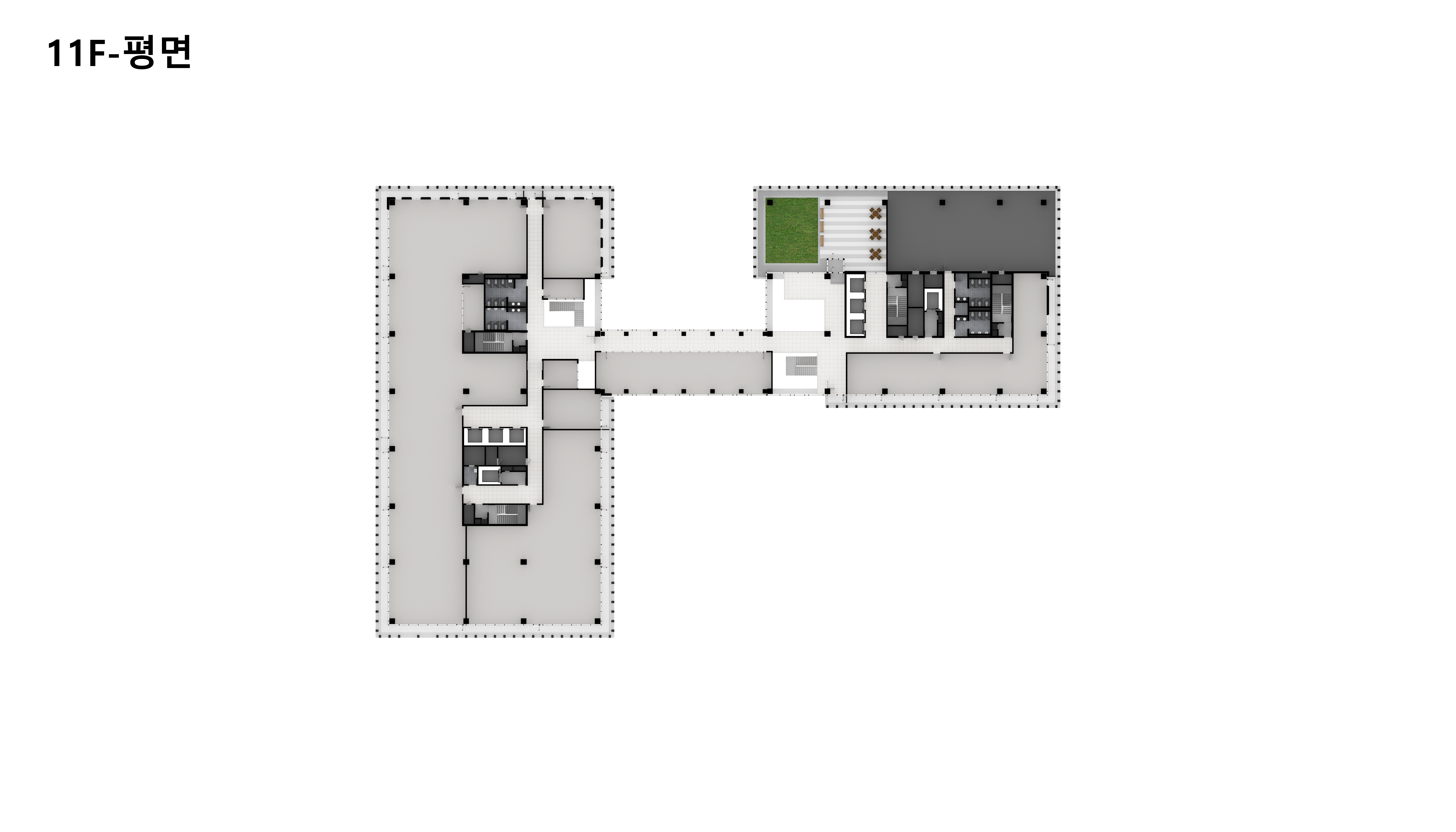
마곡 사무실 지식산업센터 마곡 아이파크 디어반 층별 아이소 도면
































